Описание
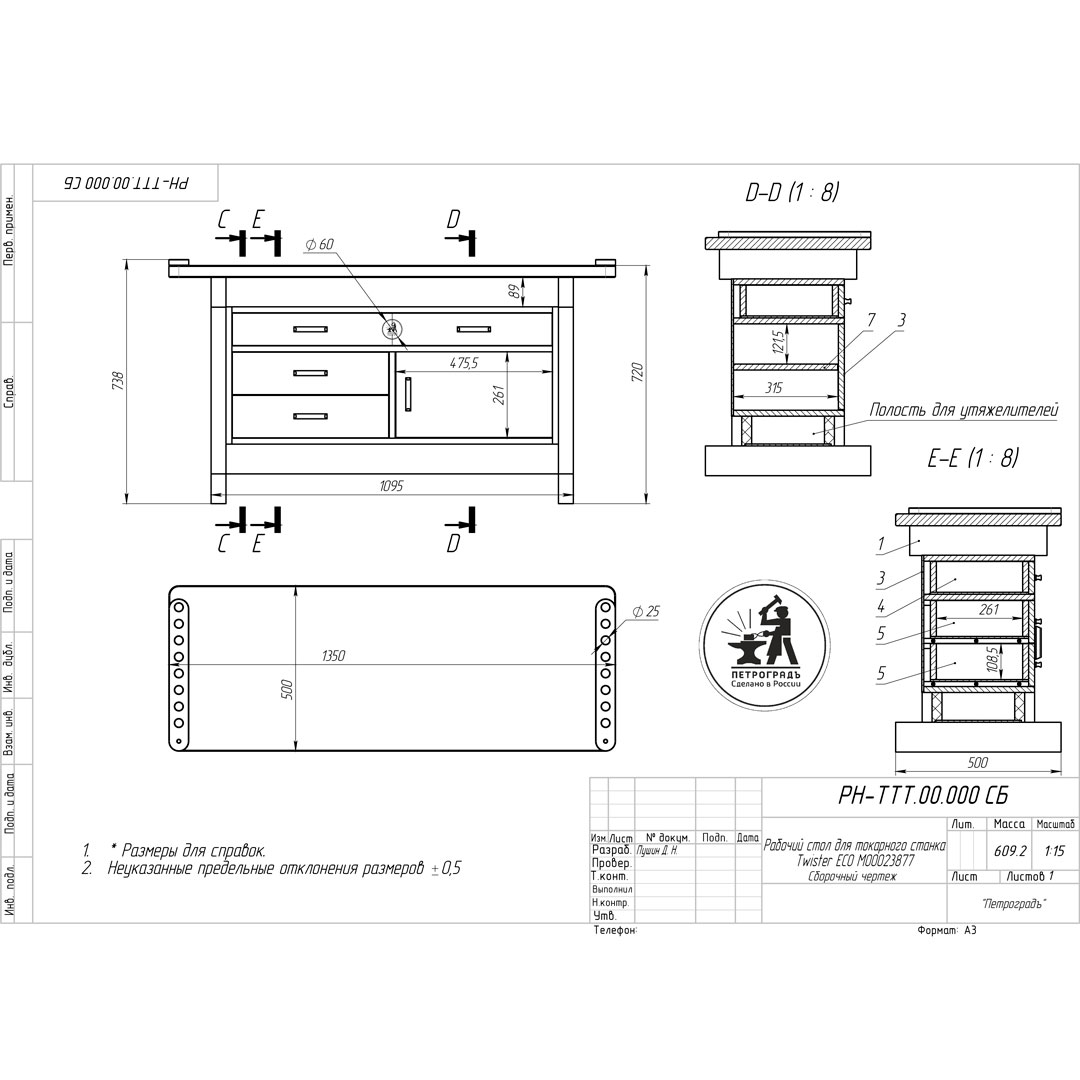
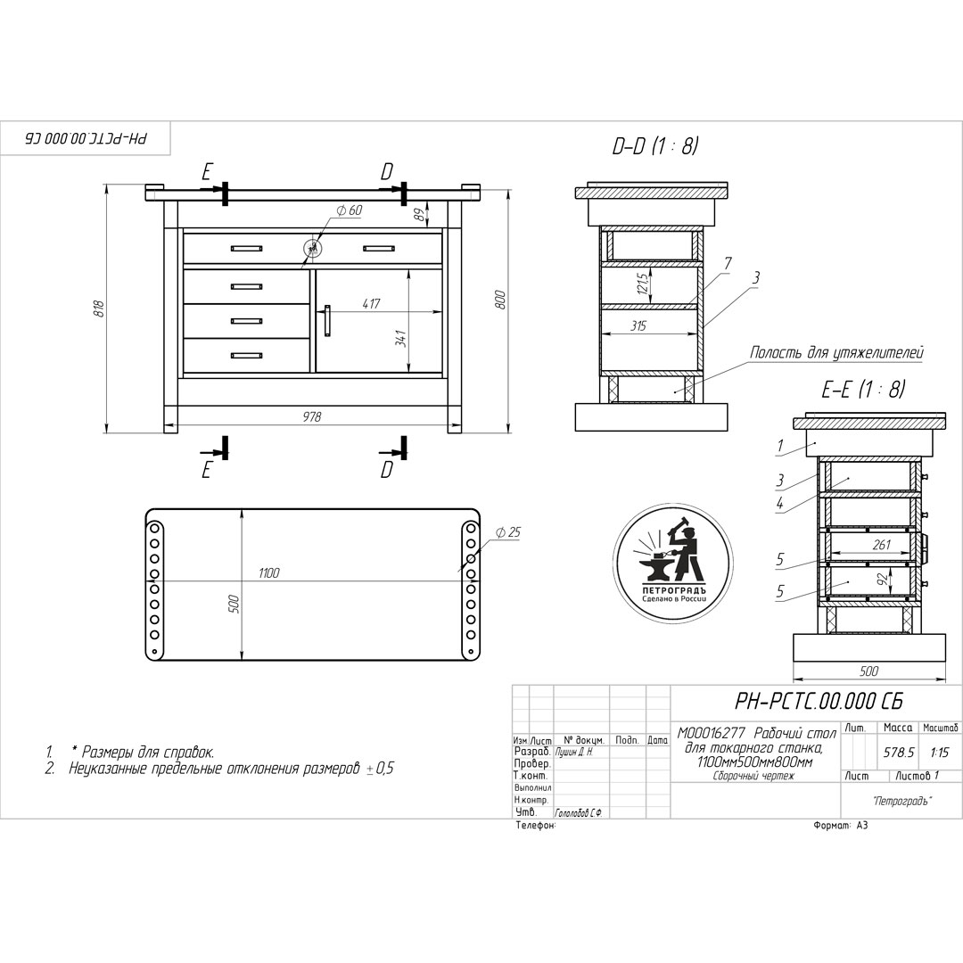
Рабочий стол для токарного станка. Тумба для токарного станка. Тумба предназначена для установки настольных токарных станков. Размер тумбы позволяет установить высоту центров станка на удобную для работы высоту. Например, для роста мастера 165-180см - высота центров у станка составляет 1125мм. Токарный станок можно закрепить к столешнице винтами насквозь или шурупами. Производство фабрика Петроградъ (Россия).
В нижней части тумбы имеется полость для песка. Засыпка песком данной полости увеличит массу тумбы и снизить вибраций при работе.
В средней части тумбы имеется ящичный блок, который устанавливается в основание и закрепляется шурупами изнутри, при этом закрывает полость для песка.
В нижней части блока имеются 3 ящика высотой 100мм для хранения инструмента и отделение с дверцей для хранения более крупных приспособлений. Отделение с дверцей имеет съёмную полку.
Над ящичным блоком имеется сквозная полка, которую можно использовать для оперативного расположения резцов и инструментов. Полка не закрыта сзади.
На столешнице расположены два держателя органайзера на 32 места для хранения часто используемых резцов.
- Основание тумбы выполнено из бука и поставляется в собранном виде.
- Ящичный блок имеет вверху ящик шириной 800мм и высотой 100мм для хранения резцов.
- Высота тумбы 800мм.
- Корпус выполнен из фанеры толщиной 18мм, ящики 12мм.
- Столешница размером 1060х500мм выполнена из фанеры 36мм.
- Ширина 1060мм.
- Глубина 500мм.
- Масса (без песка) 48кг.
Особенности:
- рабочий стол может использоваться как многофункциональный стол для мастерской. Например, на нём можно установить торцовочную пилу.
- рабочий стол может быть изготовлен под токарные станки любых габаритов с любым наполнением подверстачья.
- Также можно заказать нестандартную отделку, например, краску или лак.
Для расширения возможностей стола рекомендуем использовать с ним тиски:
- Тиски столярные Piher, со струбциной, 150мм
- Тиски столярные вертикальные, ширина подвижной губки 120мм (настольные)
- Тиски столярные, модель Moxon
- Тиски столярные, модель Сергея Клейна
Станок и резцы в комплект поставки не входят !!!






































