Описание
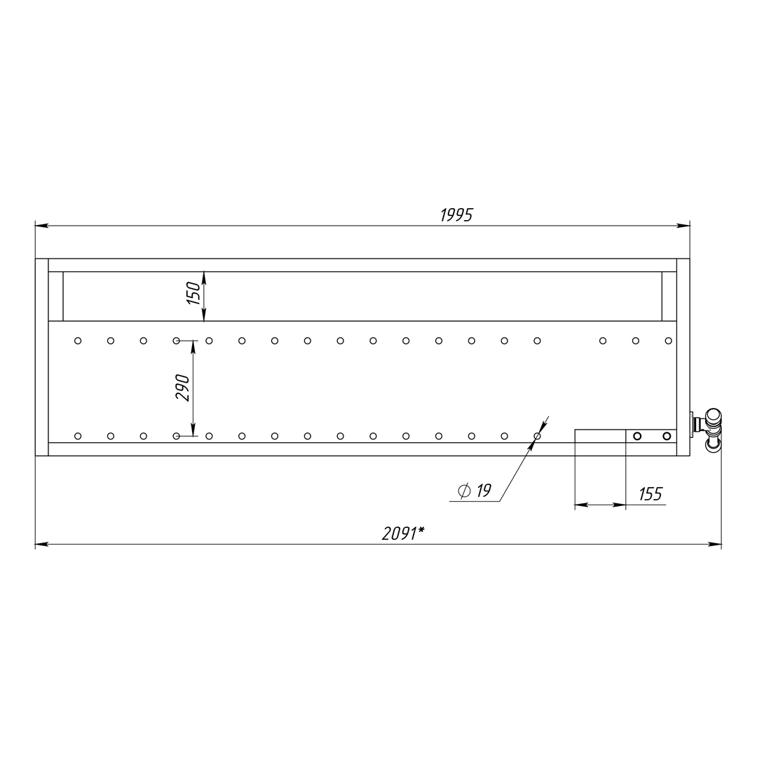
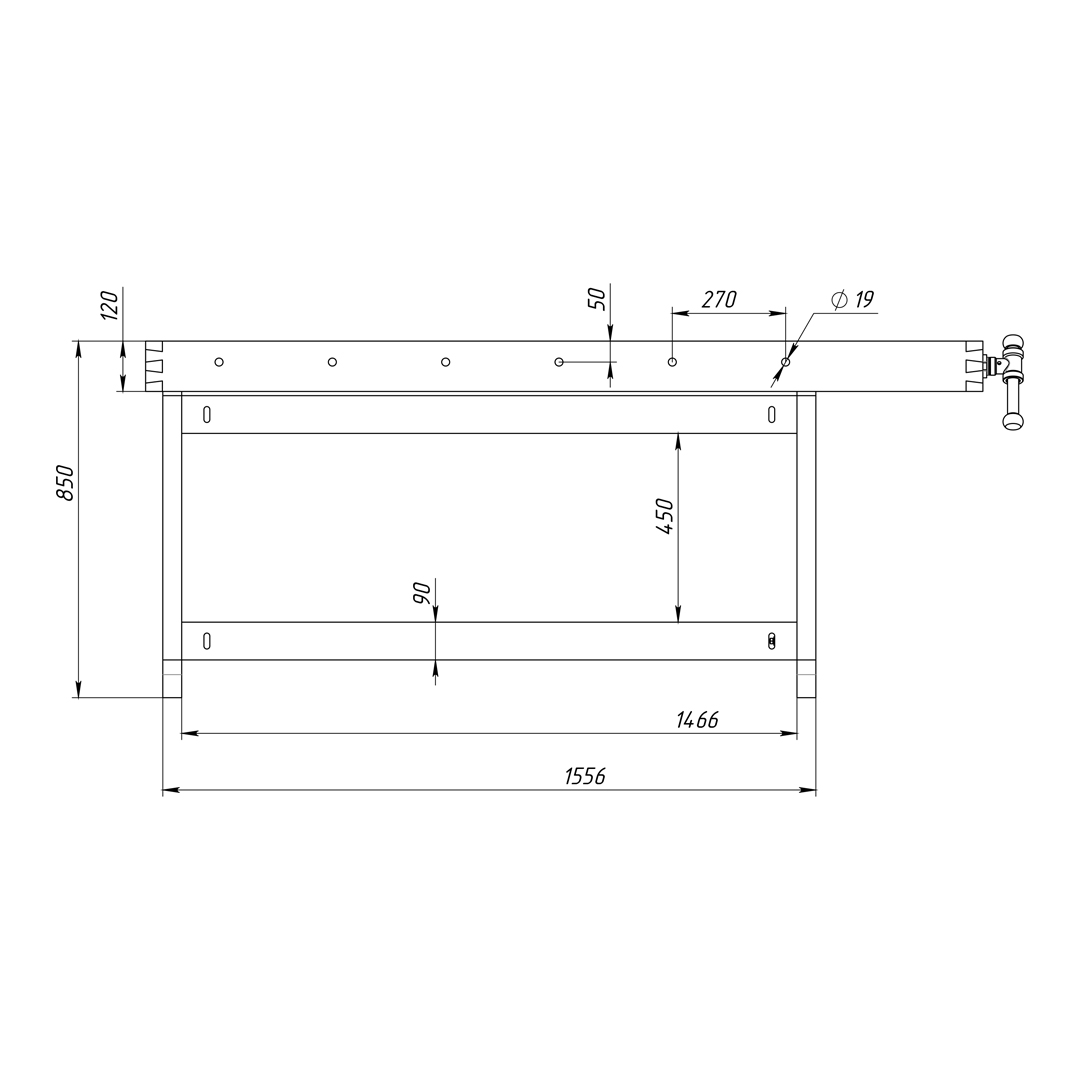
Верстак 2000*600мм, c лотком, ПТ - нет, БТ - сухарь с винтом HV582. Выполнен из массива бука. Габариты верстачной доски - 2000х600мм, толщина щита - 40мм. Обвязочная доска высотой 120мм с соединениями на ласточкин хвост. Производство фабрика Петроградъ (Россия).
Характеристики верстака:
- Материал: массив бука
- Общая высота: 850 мм
- Винтовая пара: York HV582
- Ход сухарика: 155 мм
- Диаметр отверстий для упоров: 19 мм
- Ширина лотка: 150 мм
- Масса верстака: 85 кг
Верстак оснащен лотком, в который можно сложить инструмент.
Важный момент!
Верстак был выполнен по индивидуальному заказу. Цена определяется в момент заказа. Рекомендуем выбрать подходящий верстак из базового ассортимента:



















