Верстак 1060*500мм, c пазом, ПТ - вертикальные с опорой, БТ - York HV515




Рейтинг : (5 из 5) Всего голосов: 1

Поделиться / Сохранить себе ссылку:

Верстак 1060*500мм, c пазом, ПТ - вертикальные с опорой, БТ - York HV515 М00010119 Цена расcчитывается Скоро Уведомить Заказать

Описание

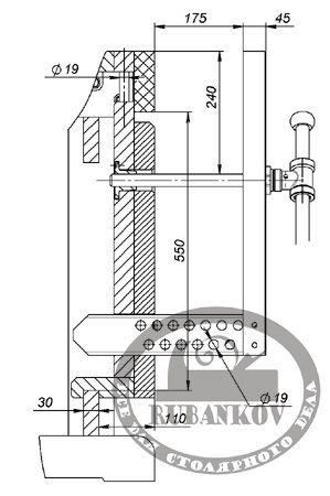
Габариты верстачной доски - 1060х500мм, толщина щита - 40мм. Обвязочная доска высотой 120мм с соединениями на ласточкин хвост. Соединение ласточкин хвост - одно из самых  красивых и надежных столярных соединений, прочность которого проверена веками. На верстаке установлены передние переставные тиски и задние стационарные тиски. 

Теперь верстаки без лотка выполняются с центральным пазом. Паз закрыт Т-образной планкой, создающей либо поверность с упором, либо ровную поверхность. Также при необходимости при удалении планки паз можно использовать для установки струбцин или упоров.


Верстак изготавливается на заказ, цена рассчитывается индивидуально
 
Передние переставные тиски  сделаны на основе винтовой пары , а задние  -  на основе винтовой пары с металическими направляющими  от фирмы York (Чехия), ширина раскрытия передних тисков - 175мм, задних - 200мм. Ширина подвижной губки передних тисков - 120мм, высота - 120мм, толщина - 45мм, шаг перестановки - 100мм. Ширина задних тисков - 500мм.  Максимальная высота зажимаемой детали  - 240мм. Губки тисков и опоры подверстачья украшены легким фрезерным узором. Для установки упоров в столешнице, просверлены 3 ряда  отверстий, 25 штук , +2 отверстия просверлено в задних тисках. В  дополнительном переставном упоре также просверлены 12 горизонтальных отверстия под упоры с шагом 38мм. Диаметр отверстий - 19мм. Конструкция переставных тисков в комплекте с переставным упором позволяет зажимать высокие доски и щиты. Для усиления подверстачья между ножками установлена дополнительная верхняя пара продольных перекладин. Материал верстачной доски - буковый щит, подверстачье и рукояти - массив бука. Столешница и подверстачье покрыты тунговым маслом фирмы Borma. Размер подверстачья - 1060х500х800мм, сечение ножек - 90х45мм. Высота верстака - 850мм. Масса верстака - примерно 60кг. В конструкцию верстака могут вноситься небольшие изменения, не влияющие на его качество. Верстачные упоры продаются отдельно. Производство - мастерскаяРубанков (Россия)

Видеоматериалы

youtube video

Характеристики

Отзывы

Файлы ()

Нет файлов

Статьи