
Музей-мастерская «1000 Топоров» едет на Фестиваль Столярного Дела 2023
Фестиваль пройдёт на своём традиционном месте:
06 — 07 мая 2023 г.
КВЦ Сокольники, 5-й Лучевой просек, Фестивальная площадь.
Стоимость входного билета: 700 руб*.
* 07 мая для детей, учащихся и пенсионеров вход бесплатный.

В программе нашего стенда:
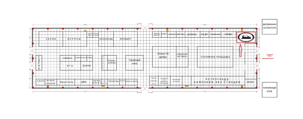
- 06 — 07 мая. Экспозиция старинных топоров из коллекции Rubankov;
- 06 мая, 17.00. Выступление на главной сцене: «Топор вчера, сегодня, завтра. Или каким должен быть современный топор?»;
- 07 мая. Детский мастер-класс «Сборка деревянного топора».